福賽爾技術資料
聯系我們
- 聯系人:郭經理
- 傳真:010-69552656
- 電話:400-0346-119
- 電話:010-57491119
- 郵箱:506665119@qq.com
- 地址:北京通州區M5運河1號3號樓403室
福賽爾JB-QB-V6871 型可燃氣體報警控制器
時間:2018-09-28 16:50:10 品牌:
![[!--oldtitle--]](/d/file/baojingshebei/2018-09-28/fdf9f535c1b47725141598859d34a67b.jpg)
產品概述:
JB-QB-V6871 型可燃氣體報警控制器(本章節簡稱:控制器)是由我公司自主開發研制的總線型智能型可燃氣體報警控制器。產品采用基于ARM平臺的RISC嵌入式技術及無主從對等網絡技術,與我公司研發生產的可燃氣體探測器及消防控制室圖形顯示裝置組成可燃氣體報警系統。并通過對探測器上傳的數據進行的各種數據的處理,完成探測數據的實時顯示及控制輸出等功能。
JB-QB-V6871 型控制器符合--標準GB16808-2008《可燃氣體報警控制器》。適用于民用建筑、液化氣站、燃氣鍋爐房、石油化工、油庫、汽車工業等用氣場所。
功能特點:
• 4.3寸TFT真彩液晶屏顯示,觸摸屏操作;
• 單回路探測總線,單機運行-大探測點位32個地址點;
• 可實時顯示各探測器所探測的可燃氣體濃度值;
• 具有中文信息打印功能,主機可存儲8000條事件記錄;
• 具有7組可編程有源控制輸出;
• 現場編程可采用在主機上手工操作方式或連接筆記本電腦方式實現現場編程;
• 配接聯網卡可與我廠的其它型號的控制器實現聯網功能。
主要技術指標:
• 工作主電電壓: AC180V ~AC242V/50HZ
• 備用電池規格: 2.3AH/12V、2節
• 回路輸出電壓: DC15V ~ DC28V
• 回 路 數 量: 單回路
• 回 路 容 量: 32個地址點
• 回路-大輸出電流: 200mA
• 回路-大保護電流: ≤400mA
• 可編程控制輸出: 7組,DC24V/1A
• 聯動電源輸出: DC24V/2A
• 工作環境溫度: -10℃ ~50℃
• 環境相對濕度: ≤95%RH(40±2℃)
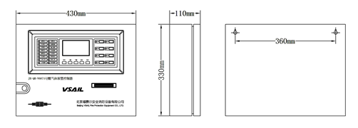
• 安 裝 方 式: 壁掛式
• 外 形 尺 寸:寬430mm×高330mm×厚110mm
外形結構與安裝方式:








